Avida Residences Floor Plan
Serene Marina Development

The Avida Residences Floor Plan by Serene Marina, Dubai

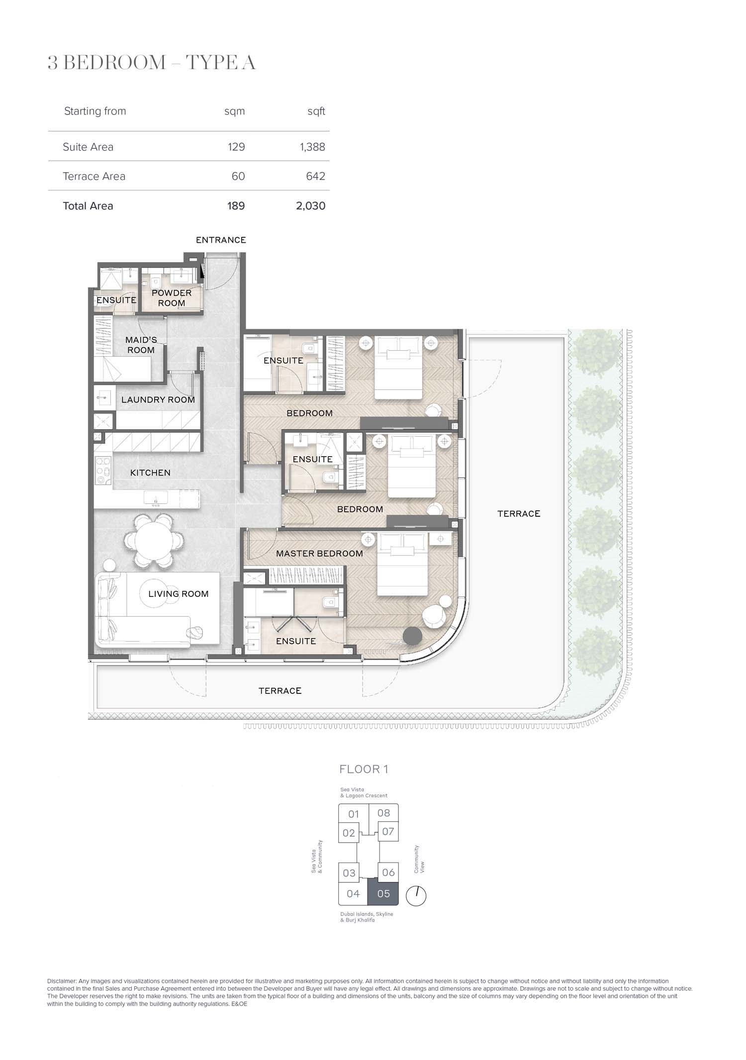
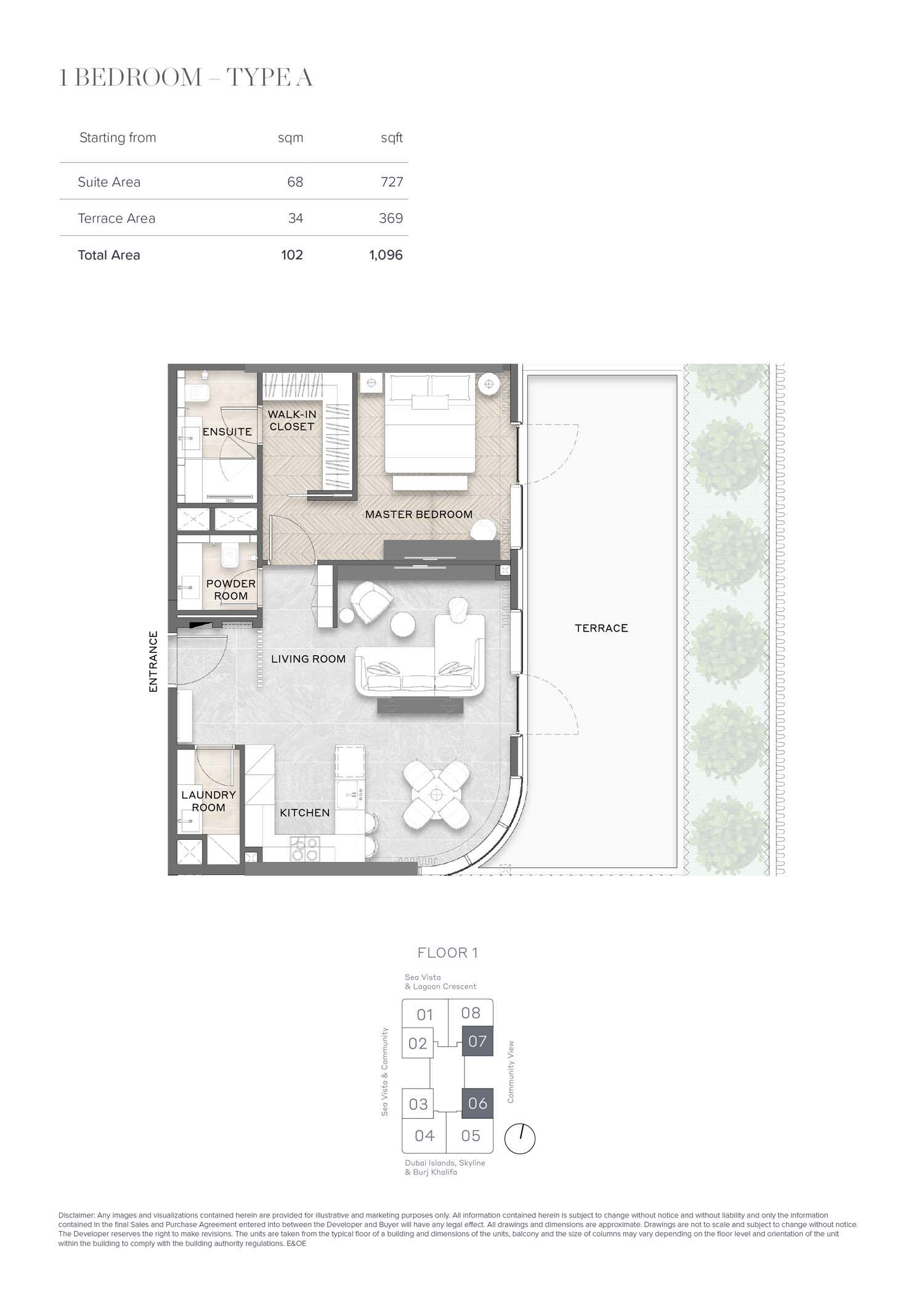
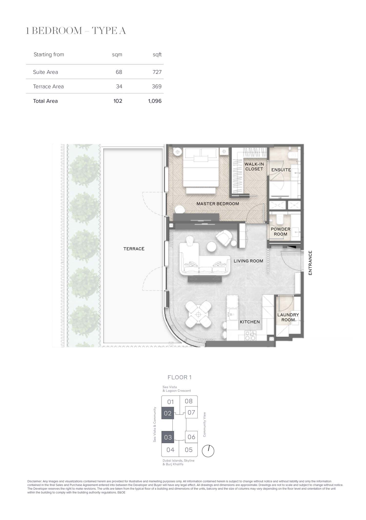
Unit TypeApartments

1, 2 & 3 Bedroom

Size Size

811 to 1,563 Sq Ft.

Avida ResidencesAnticipated Handover - Q4 - 2027 Handover

Q4 - 2027

AED 1.79 Million

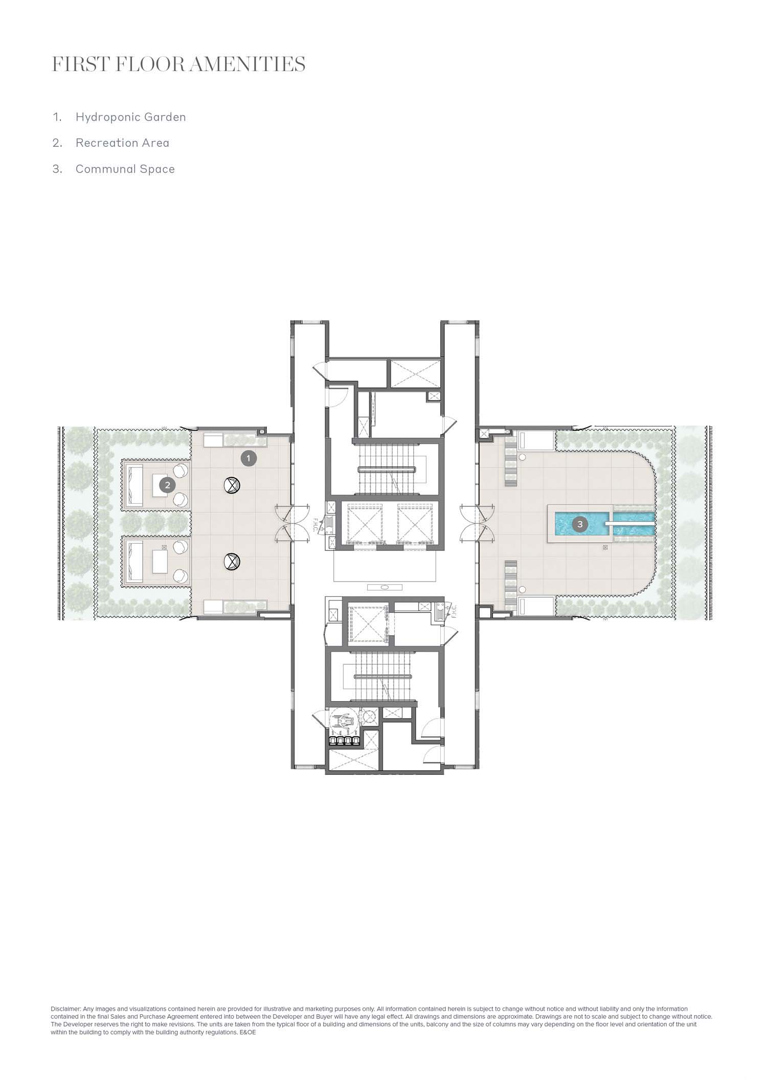
Floor Plan

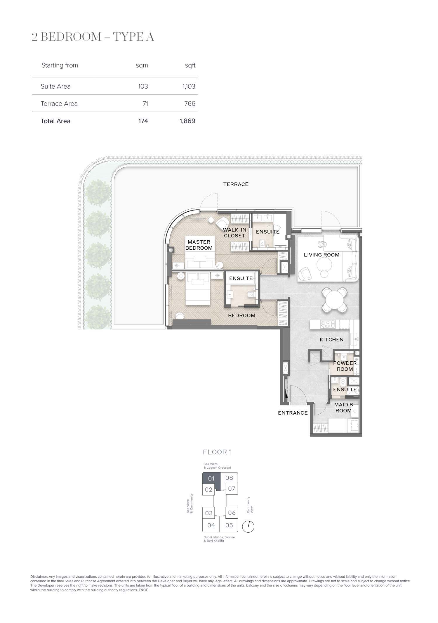
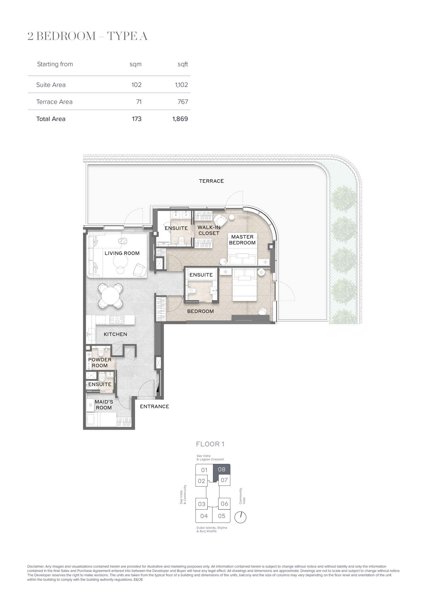
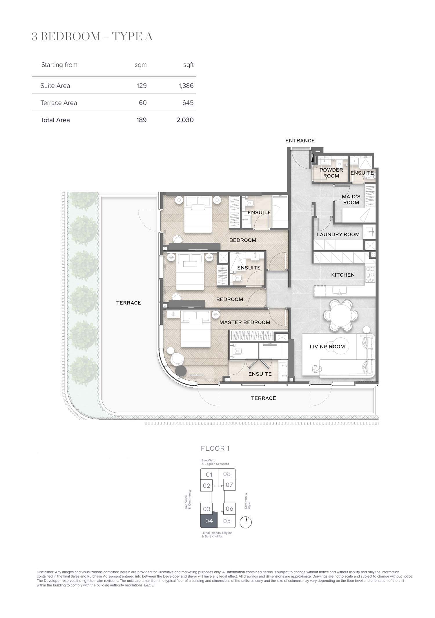
The Avida Residences located at Dubai Islands has a good mix of living spaces from units with larger family sizes as well. Every layout is sensibly considered to be space-efficient and open, bright and airy. Floor-to-ceiling glass windows and wide balconies encourage plenty of ordinary light, exploiting a sense of space while infectious the nearness to viewers on the water’s edge.

Inside, you will discover modern kitchens complete with a full range of the latest fittings and utilizations, as well as kindly sized bedrooms and living spaces planned for both comfort and practicality. Well-designed layouts that allow it to be a long-term home, as well as income property, and filled with amenities make these residences suitable for one's lifestyle needs or investment desires.

Recent Projects by Serene Marina Development

Register your interest